Trilocale in vendita

Chioggia, Via Angelo Fava
€ 274.000
Prezzo aggiornato
3 locali 3 locali
101 Mq 101 Mq
2 bagni 2 bagni

Trilocale in vendita

Chioggia, Via Angelo Fava

Descrizione annuncio

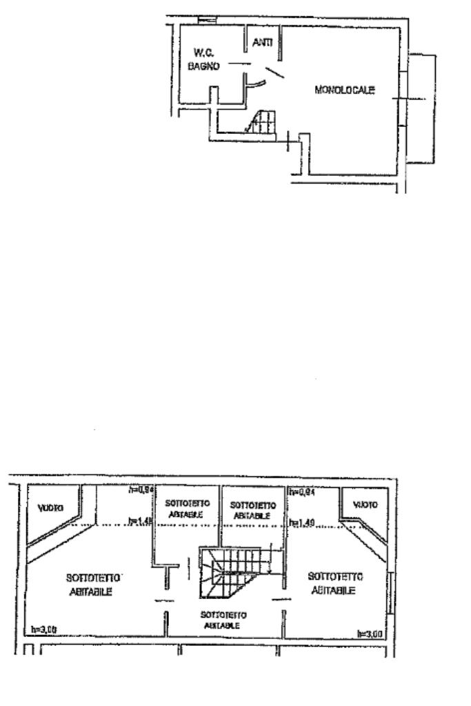
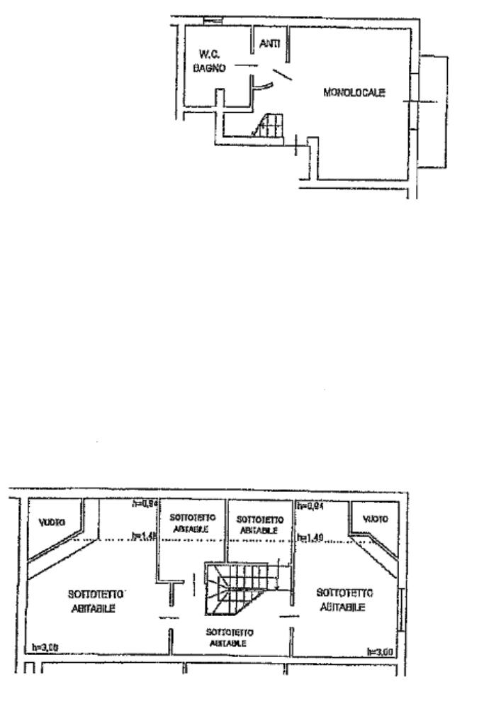
CHIOGGIA: In un contesto di sole tre unità abitative, nel cuore del centro storico di Chioggia si propone in vendita trilocale duplex di recente costruzione con cantina di proprietà.

L’immobile si sviluppa su due livelli. Al primo piano l’ingresso conduce alla luminosa zona giorno composta da cucina open space abitabile con accesso al poggiolo, ampio soggiorno e bagno finestrato con box doccia.
Al secondo piano si sviluppa la zona notte mansardata, composta da due spaziose e luminose camere matrimoniali, lavanderia e un secondo bagno finestrato completo di vasca.

Costruito nel 2012, l’appartamento si presenta in ottime condizioni e viene venduto parzialmente arredato, pronto per essere abitato.
Soluzione ideale per chi desidera vivere nel fascino del centro storico senza rinunciare al comfort di una costruzione recente.

Abitazione: 100 mq ( commerciali )

Prezzo: € 290.000,00

Mostra tutto

Nelle vicinanze

Trasporto pubblico Trasporto pubblico
stazione di Chioggia
stazione di Chioggia
670 m
Trasporto pubblico
580 m
Sottomarina Autostazione
Sottomarina Autostazione
1,2 Km
Trasporto pubblico
740 m
Chioggia
880 m
Ricariche auto elettriche Ricariche auto elettriche
Hotel Mediterraneo
1,4 Km
Scuole Scuole
Istituto Cavanis
170 m
Istituo Comprensivo Chioggia 1
220 m
Scuole
460 m
Bruno Caccin
1,7 Km
ITIS A. Righi
1,7 Km
Farmacia Farmacia
Farmacia
510 m
Farmacia (San Giovanni)
1,6 Km
Farmacia alla Navicella
2,4 Km
Farmacia San Michele
2,4 Km
Farmacia all'Adriatico
2,5 Km
Ospedali Ospedali
Ospedali
2,0 Km
Pronto Soccorso Ospedale Chioggia
2,1 Km
Supermercati Supermercati
Supermercati
140 m
inCoop
360 m
EuroSpin
620 m
Alimentari Molin
1,3 Km
Alimentari Chio
1,5 Km
Negozi Negozi
Pasticeria Di Giorgio
630 m
Pasticceria Ruggero
740 m
Negozi
1,1 Km
Sergent major
1,1 Km
Carturan
1,2 Km
Bar Bar
Ombradeldomo
120 m
Chioggiottino
120 m
Bar
340 m
Pedavena
570 m
Bar Ristorante
610 m
Ristoranti Ristoranti
Ristoranti
390 m
El Fontego
420 m
La Forcola
560 m
Antico Toro
560 m
Trattoria Laterna Blu
560 m
Mostra tutto

Caratteristiche

Rif.:
61184794
Piano:
1 di 3 (Piano alto)
Balconi:
1
Camere da letto:
2
Arredamento:
Completo
Condizionamento:
Autonomo
Mostra tutto
Prezzo Prezzo
€ 274.000
Rata mutuo Rata mutuo
€ 1.292 / mese
Spese annue Spese annue
€ 1.000
Proponi il tuo prezzoProponi il tuo prezzo

Classe Energetica

A2
A2
A2
A2
A2
A2
A2
A2
A2
EP globale non rinnovabile:
88.84 kW h/m² anno
EP globale rinnovabile:
88.84 kW h/m² anno
EP invernale del fabbricato:
EP estiva del fabbricato:
Anno di costruzione:
2012
Riscaldamento:
Autonomo
Tipo impianto:
A radiatori
Tipo alimentazione:
Metano

Prezzo ridotto di €1 (6%%)

Ti interessa visionare l'immobile?

Fissa un appuntamento  Fissa un appuntamento

Richiedi informazioni

Clicca su Leggi per aprire l'informativa
* Questi campi sono obbligatori

Calcola il tuo mutuo

Semplice e senza impegno
Anticipo

( % )
Mutuo

( % )

pochi semplici passi

inserisci i tuoi dati
Questionario completato
Grazie per aver richiesto un appuntamento senza impegno con un nostro Consulente del Credito e Assicurativo.

Hai inserito correttamente tutti i dati necessari e a breve riceverai una e-mail con un link da convalidare per inviare i tuoi dati.
Affiliato
Retemare Srl
Corso Del Popolo, 1212 30015 Chioggia (VE)
Corso Del Popolo, 1212 30015 Chioggia (VE)
Zona: Chioggia
Mostra su mappa
Affiliato
Retemare Srl
Corso Del Popolo, 1212 30015 Chioggia (VE)

2026 Tecnocasa Franchising S.p.A. - P. IVA 08365160152 - Via Monte Bianco 60/A 20089 Rozzano (MI). Ogni agenzia ha un proprio titolare ed è autonoma. Privacy policy | Policy utilizzo | Cookie policy